
| 問い合わせコード | B05286-0 |
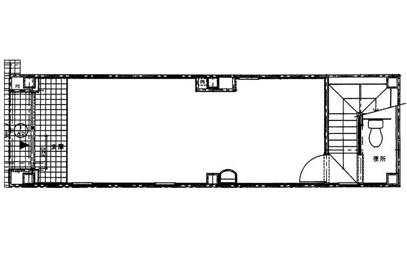
| 物件名 | サンテ天神ビル ※他の空室情報は物件名をクリック (サンテテンジンビル) | ||
|---|---|---|---|
| 所在地 | 福岡県福岡市中央区天神1丁目15-36 | ||
| 竣工年 | 2006年10月(築19年) | 構造 | S造 地上3階 |
| こちらの空室情報は掲載が終了しました | |||
■周辺情報
最新の空室状況や、サンテ天神ビルの内覧のお申し込み、福岡市中央区天神1丁目15-36周辺の相場や平均賃料などお気軽にお問い合わせください。
※福岡市内の主要なビジネスエリアの空室率や賃貸事務所の平均募集賃料をエリア別・竣工年代別にご覧いただけます。