三天第1ビル【福岡市中央区天神3丁目15-24の賃貸事務所】 - 最新の空室状況や資料請求などお気軽にお問い合わせください。

福岡の貸事務所・オフィスの賃貸ならオフィスネットワーク

メールでのお問い合わせはこちら

お電話でのお問合せ 092-452-5111



HOME > 貸事務所検索 トップ > 三天第1ビル|福岡市中央区天神3丁目15-24の貸事務所 物件詳細

物件概要


福岡市中央区三天第1ビルの物件外観


福岡市中央区三天第1ビルの物件詳細画像

■①1F


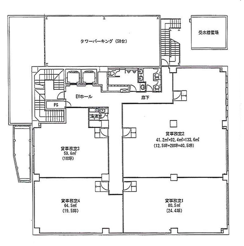
福岡市中央区三天第1ビルの物件詳細画像

■②2F


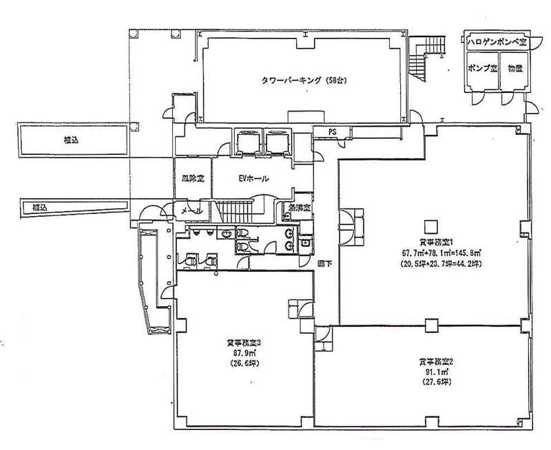
福岡市中央区三天第1ビルの物件詳細画像

■③4F


福岡市中央区三天第1ビルの物件詳細画像

■④7F


物件詳細情報

問い合わせコードB05353-2

面積 28 坪 ( 92.56m²) 家賃総額 431,200 円(税込) 

アクセス良好。

物件名三天第1ビル ※他の空室情報は物件名をクリック
所在地福岡県福岡市中央区天神3丁目15-24
アクセス 地下鉄空港線 天神駅 まで 徒歩約8
賃料 431,200円(税込)
(1坪あたり:15,400円)
共益費  
敷金 10ヶ月分  3,920,000円(総額) 階数 2階
竣工年 1989年08月(築36年) 構造 SRC造 地上8階
空調 個別空調 空冷ヒートポンプパッケージ方式 駐車場 立体駐車場 32台
設備 OAフロア無し リフレッシュルーム無し 会議室無し 喫煙室無し

更新日時:2025/12/09(次回更新予定日:2025/12/16)

検討リストに追加する 物件について問い合わせる

092-452-5111
物件詳細や空室率・相場など専門スタッフがお答えします!お気軽にお問い合わせください!

物件が気になる方はお気軽にお問い合わせを!

お問い合わせ

お電話の方はこちらから 092-452-5111



■周辺情報

類似した物件

※価格は税込 ※周辺にある賃料・面積の近い物件を表示しています。
福岡市中央区

事務所外観画像

28
494,384

福岡天神北ビル

福岡市中央区

事務所外観画像

27
390,676

占部天神ビル

福岡市中央区

事務所外観画像

30
491,865

天神エフビル

福岡市中央区

事務所外観画像

25
条件相談

サンテ天神ビル

福岡市中央区

事務所外観画像

23
条件相談

JRE天神3丁目ビル

福岡市中央区

事務所外観画像

33
511,742

天神ビルプラス

福岡市中央区

事務所外観画像

23
450,475

天神ビル新館


三天第1ビル : 福岡市中央区天神3丁目15-24の賃貸事務所・賃貸オフィスの物件詳細情報 【問い合わせコード:B05353-2】

最新の空室状況や、三天第1ビルの内覧のお申し込み、福岡市中央区天神3丁目15-24周辺の相場や平均賃料などお気軽にお問い合わせください。


福岡のオフィスビル相場【空室率・平均賃料】はこちら

※福岡市内の主要なビジネスエリアの空室率や賃貸事務所の平均募集賃料をエリア別・竣工年代別にご覧いただけます。

お問い合わせ

まずはお気軽にご相談ください。
オフィス・店舗・倉庫の賃貸仲介から不動産の売却や購入、不動産管理まで。
福岡の不動産はオフィスネットワークにおまかせください。

☎ 092-452-5111 【受付時間】平日 9:00~18:00

不動産に関して今すぐ相談する