博多テラス【福岡市博多区博多駅前3丁目18-7】賃貸事務所の空室一覧

福岡の貸事務所・オフィスの賃貸ならオフィスネットワーク

メールでのお問い合わせはこちら

お電話でのお問合せ 092-452-5111



HOME > 貸事務所検索 トップ > 博多テラス【福岡市博多区博多駅前3丁目18-7】賃貸事務所の空室一覧

物件概要


福岡市博多区博多テラスの物件外観


福岡市博多区博多テラスの物件詳細画像

■①5F-6F分割プラン


福岡市博多区博多テラスの物件詳細画像

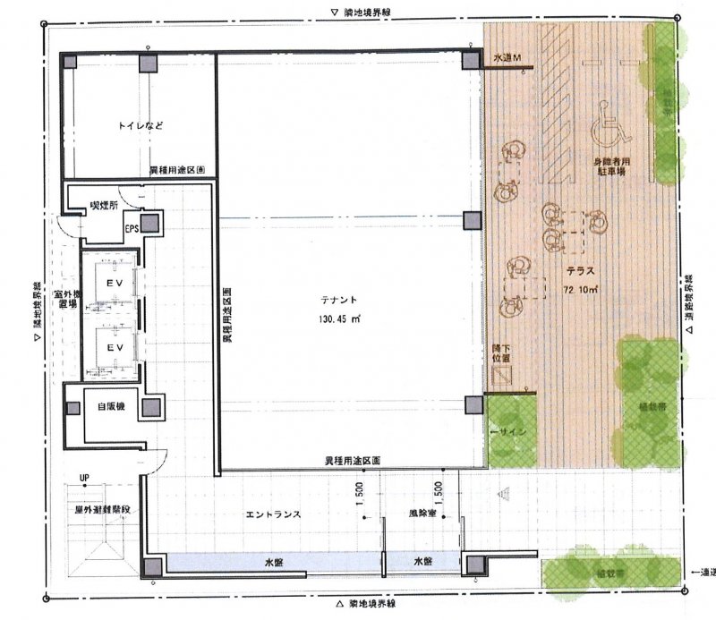
■②1F


福岡市博多区博多テラスの物件詳細画像

■③8F-7F


物件詳細情報

問い合わせコードB04184

物件名 博多テラス
(ハカタテラス)
所在地福岡県福岡市博多区博多駅前3丁目18-7
アクセス JR 博多駅 まで 徒歩約6
竣工年 2022年03月(築4年) 構造 S造 地上9階
エレベータ 乗用7人乗り2基 天井高 2800mm
設備 OAフロア有り リフレッシュルーム有り 会議室有り 喫煙室有り

フロア情報

階数面積家賃総額(税込)備考詳細
現在、募集している区画がありません

物件が気になる方はお気軽にお問い合わせを!

お問い合わせ

お電話の方はこちらから 092-452-5111



■周辺情報

類似した物件

※価格は税込 ※周辺にある賃料・面積の近い物件を表示しています。
福岡市博多区

事務所外観画像

31
条件相談

T-PLUS博多駅前

福岡市博多区

事務所外観画像

31
条件相談

東京建物博多ビル

福岡市博多区

事務所外観画像

30
825,825

オクターブ博多駅前ビル

福岡市博多区

事務所外観画像

35
条件相談

シティ21ビル

福岡市博多区

事務所外観画像

26
727,650

九勧末広通りビル

福岡市博多区

事務所外観画像

37
698,071

BAL.HAKATA


博多テラス : 福岡市博多区博多駅前3丁目18-7の賃貸事務所・賃貸オフィスの物件詳細情報 【問い合わせコード:B04184-2】

最新の空室状況や、博多テラスの内覧のお申し込み、福岡市博多区博多駅前3丁目18-7周辺の相場や平均賃料などお気軽にお問い合わせください。


福岡のオフィスビル相場【空室率・平均賃料】はこちら

※福岡市内の主要なビジネスエリアの空室率や賃貸事務所の平均募集賃料をエリア別・竣工年代別にご覧いただけます。

お問い合わせ

まずはお気軽にご相談ください。
オフィス・店舗・倉庫の賃貸仲介から不動産の売却や購入、不動産管理まで。
福岡の不動産はオフィスネットワークにおまかせください。

☎ 092-452-5111 【受付時間】平日 9:00~18:00

不動産に関して今すぐ相談する