岩保ビル駅南【福岡市博多区博多駅南4丁目1-17】賃貸事務所の空室一覧

福岡の貸事務所・オフィスの賃貸ならオフィスネットワーク

メールでのお問い合わせはこちら

お電話でのお問合せ 092-452-5111



HOME > 貸事務所検索 トップ > 岩保ビル駅南【福岡市博多区博多駅南4丁目1-17】賃貸事務所の空室一覧

物件概要


福岡市博多区岩保ビル駅南の物件外観


福岡市博多区岩保ビル駅南の物件詳細画像

■①1F


福岡市博多区岩保ビル駅南の物件詳細画像

■②4F-6F


福岡市博多区岩保ビル駅南の物件詳細画像

■③2F


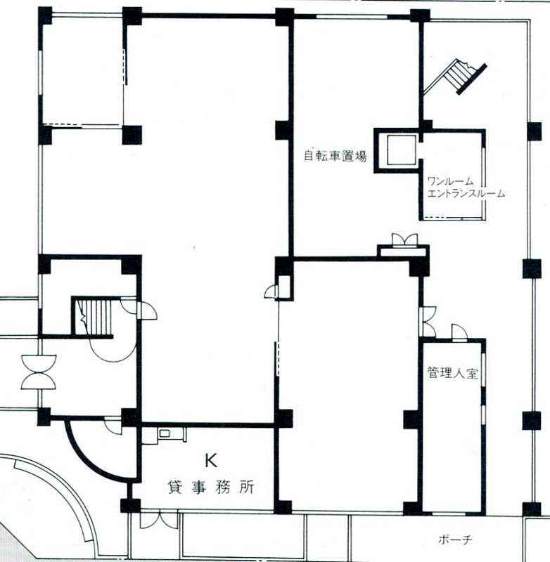
福岡市博多区岩保ビル駅南の物件詳細画像

■④3F


物件詳細情報

問い合わせコードB03489

物件名岩保ビル駅南
所在地福岡県福岡市博多区博多駅南4丁目1-17
アクセス 地下鉄空港線 東比恵駅 まで 徒歩約12
竣工年 1992年06月(築33年) 構造 RC造 地上10階
設備 OAフロア無し リフレッシュルーム無し 会議室無し 喫煙室無し

フロア情報

階数面積家賃総額(税込)備考詳細
現在、募集している区画がありません

物件が気になる方はお気軽にお問い合わせを!

お問い合わせ

お電話の方はこちらから 092-452-5111



■周辺情報

類似した物件

※価格は税込 ※周辺にある賃料・面積の近い物件を表示しています。
福岡市博多区

事務所外観画像

22
143,000

東カン福岡第2ビル

福岡市博多区

事務所外観画像

21
184,800

岩義ビル

福岡市博多区

事務所外観画像

19
149,303

フェイズイン山王公園前


岩保ビル駅南 : 福岡市博多区博多駅南4丁目1-17の賃貸事務所・賃貸オフィスの物件詳細情報 【問い合わせコード:B03489-3】

最新の空室状況や、岩保ビル駅南の内覧のお申し込み、福岡市博多区博多駅南4丁目1-17周辺の相場や平均賃料などお気軽にお問い合わせください。


福岡のオフィスビル相場【空室率・平均賃料】はこちら

※福岡市内の主要なビジネスエリアの空室率や賃貸事務所の平均募集賃料をエリア別・竣工年代別にご覧いただけます。

お問い合わせ

まずはお気軽にご相談ください。
オフィス・店舗・倉庫の賃貸仲介から不動産の売却や購入、不動産管理まで。
福岡の不動産はオフィスネットワークにおまかせください。

☎ 092-452-5111 【受付時間】平日 9:00~18:00

不動産に関して今すぐ相談する