エストラスト下関センタービル【下関市竹崎町4丁目】賃貸事務所の空室一覧

福岡の貸事務所・オフィスの賃貸ならオフィスネットワーク

メールでのお問い合わせはこちら

お電話でのお問合せ 092-452-5111



HOME > 貸事務所検索 トップ > エストラスト下関センタービル【下関市竹崎町4丁目】賃貸事務所の空室一覧

物件概要


下関市エストラスト下関センタービルの物件外観


下関市エストラスト下関センタービルの物件詳細画像

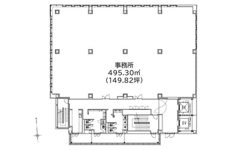
■①基準階


下関市エストラスト下関センタービルの物件詳細画像

■②1F


下関市エストラスト下関センタービルの物件詳細画像


物件詳細情報

問い合わせコードB01716

物件名 エストラスト下関センタービル
(エストラストシモノセキセンタービル)
所在地山口県下関市竹崎町4丁目
アクセス山陽本線JR下関駅まで徒歩約5分
竣工年 2023年07月(築2年) 構造 S造 地上9階
空調 個別空調 空冷ヒートポンプパッケージ方式 駐車場 平面3台および立体駐車場88台 91台
エレベータ 乗用2基 天井高 2700mm
設備 OAフロア有り リフレッシュルーム有り 会議室無し 喫煙室有り

フロア情報

階数面積家賃総額(税込)備考詳細
現在、募集している空室がありません

物件が気になる方はお気軽にお問い合わせを!

お問い合わせ

お電話の方はこちらから 092-452-5111



■周辺情報

お問い合わせ

まずはお気軽にご相談ください。
オフィス・店舗・倉庫の賃貸仲介から不動産の売却や購入、不動産管理まで。
福岡の不動産はオフィスネットワークにおまかせください。

☎ 092-452-5111 【受付時間】平日 9:00~18:00

不動産に関して今すぐ相談する