小倉駅前奥田ビル【北九州市小倉北区米町1丁目1-7】賃貸事務所の空室一覧

福岡の貸事務所・オフィスの賃貸ならオフィスネットワーク

メールでのお問い合わせはこちら

お電話でのお問合せ 092-452-5111



HOME > 貸事務所検索 トップ > 小倉駅前奥田ビル【北九州市小倉北区米町1丁目1-7】賃貸事務所の空室一覧

物件概要


北九州市小倉北区小倉駅前奥田ビルの物件外観


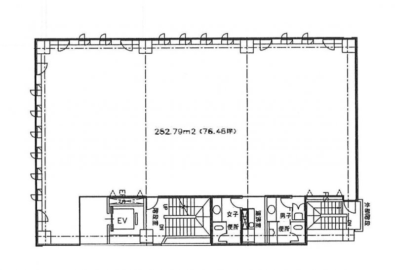
北九州市小倉北区小倉駅前奥田ビルの物件詳細画像

■2F-7F


物件詳細情報

問い合わせコードB01546

物件名小倉駅前奥田ビル
所在地福岡県北九州市小倉北区米町1丁目1-7
アクセス JR 小倉駅 まで 徒歩約3
竣工年 1985年11月(築40年) 構造 SRC造 地上7階 地下2階
空調 セントラル空調 セントラルダクト方式 駐車場 立体駐車場 25台
設備 OAフロア無し リフレッシュルーム無し 会議室無し 喫煙室無し

フロア情報

階数面積家賃総額(税込)備考詳細
現在、募集している空室がありません

物件が気になる方はお気軽にお問い合わせを!

お問い合わせ

お電話の方はこちらから 092-452-5111



■周辺情報

類似した物件

※価格は税込 ※周辺にある賃料・面積の近い物件を表示しています。
北九州市八幡西区

事務所外観画像

21
226,050

菅原第一ビル

北九州市小倉北区

事務所外観画像

21
条件相談

日本生命小倉堺町ビル

北九州市小倉北区

事務所外観画像

21
条件相談

十八銀行第一生命共同ビルディング

北九州市八幡西区

事務所外観画像

19
209,000

黒崎ビル

北九州市小倉北区

事務所外観画像

19
条件相談

大同生命北九州ビル

北九州市小倉北区

事務所外観画像

23
263,318

新小倉ビル

北九州市八幡西区

事務所外観画像

23
213,461

グラン黒崎


小倉駅前奥田ビル : 北九州市小倉北区米町1丁目1-7の賃貸事務所・賃貸オフィスの物件詳細情報 【問い合わせコード:B01546-3】

最新の空室状況や、小倉駅前奥田ビルの内覧のお申し込み、北九州市八幡西区米町1丁目1-7周辺の相場や平均賃料などお気軽にお問い合わせください。


福岡のオフィスビル相場【空室率・平均賃料】はこちら

※福岡市内の主要なビジネスエリアの空室率や賃貸事務所の平均募集賃料をエリア別・竣工年代別にご覧いただけます。

お問い合わせ

まずはお気軽にご相談ください。
オフィス・店舗・倉庫の賃貸仲介から不動産の売却や購入、不動産管理まで。
福岡の不動産はオフィスネットワークにおまかせください。

☎ 092-452-5111 【受付時間】平日 9:00~18:00

不動産に関して今すぐ相談する