博多東ハニービル【福岡市博多区博多駅東2丁目2-2の賃貸事務所】 - 最新の空室状況や資料請求などお気軽にお問い合わせください。

福岡の貸事務所・オフィスの賃貸ならオフィスネットワーク

メールでのお問い合わせはこちら

お電話でのお問合せ 092-452-5111



HOME > 貸事務所検索 トップ > 博多東ハニービル|福岡市博多区博多駅東2丁目2-2の貸事務所 物件詳細

物件概要


福岡市博多区博多東ハニービルの物件外観


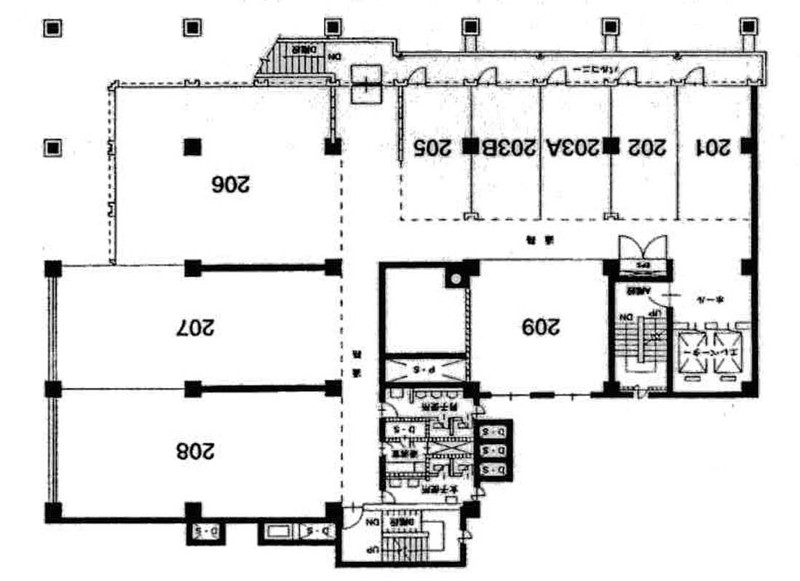
福岡市博多区博多東ハニービルの物件詳細画像

■①1F


福岡市博多区博多東ハニービルの物件詳細画像

■②3F-8F


福岡市博多区博多東ハニービルの物件詳細画像

■③2F


福岡市博多区博多東ハニービルの物件詳細画像

■エントランス


物件詳細情報

問い合わせコードB03295-9

面積 14.08 坪 ( 46.55m²) 家賃総額 240,064 円(税込) 

立地に自信有り!平成16年 フルリニューアル済み!耐震補強工事も完了!

物件名博多東ハニービル ※他の空室情報は物件名をクリック
所在地福岡県福岡市博多区博多駅東2丁目2-2
アクセス JR 博多駅 まで 徒歩約2
賃料 187,405円(税込)
(1坪あたり:13,310円)
共益費 52,659円(税込)
(1坪あたり:3,740円)
敷金 10ヶ月分  1,703,680円(総額) 階数 9階
竣工年 1974年03月(築51年) 構造 SRC造 地上9階 地下2階
空調 個別空調 全館個別分散マルチエアコン方式 駐車場 立体駐車場 32台
エレベータ 乗用13人乗り2基 天井高 2600mm
設備 OAフロア有り リフレッシュルーム有り 会議室無し 喫煙室有り
備考 平成16年 フルリニューアル済み 耐震補強工事済 OAフロア、天井高2,600mm 

更新日時:2025/12/16(次回更新予定日:2025/12/23)

検討リストに追加する 物件について問い合わせる

092-452-5111
物件詳細や空室率・相場など専門スタッフがお答えします!お気軽にお問い合わせください!

物件が気になる方はお気軽にお問い合わせを!

お問い合わせ

お電話の方はこちらから 092-452-5111



■周辺情報

類似した物件

※価格は税込 ※周辺にある賃料・面積の近い物件を表示しています。
福岡市博多区

事務所外観画像

14
204,188

新幹線ビル2号館

福岡市博多区

事務所外観画像

14
212,744

ARKビル

福岡市博多区

事務所外観画像

15
208,780

第13泰平ビル

福岡市博多区

事務所外観画像

13
193,270

第6岡部ビル

福岡市博多区

事務所外観画像

16
258,720

博多駅東アトルビル

福岡市博多区

事務所外観画像

17
264,611

八重洲博多ビル

福岡市博多区

事務所外観画像

11
208,362

博多ニッコーハイツ


博多東ハニービル : 福岡市博多区博多駅東2丁目2-2の賃貸事務所・賃貸オフィスの物件詳細情報 【問い合わせコード:B03295-9】

最新の空室状況や、博多東ハニービルの内覧のお申し込み、福岡市博多区博多駅東2丁目2-2周辺の相場や平均賃料などお気軽にお問い合わせください。


福岡のオフィスビル相場【空室率・平均賃料】はこちら

※福岡市内の主要なビジネスエリアの空室率や賃貸事務所の平均募集賃料をエリア別・竣工年代別にご覧いただけます。

お問い合わせ

まずはお気軽にご相談ください。
オフィス・店舗・倉庫の賃貸仲介から不動産の売却や購入、不動産管理まで。
福岡の不動産はオフィスネットワークにおまかせください。

☎ 092-452-5111 【受付時間】平日 9:00~18:00

不動産に関して今すぐ相談する