博多駅前シティビル【福岡市博多区博多駅前1丁目9-3の賃貸事務所】 - 最新の空室状況や資料請求などお気軽にお問い合わせください。

福岡の貸事務所・オフィスの賃貸ならオフィスネットワーク

メールでのお問い合わせはこちら

お電話でのお問合せ 092-452-5111



HOME > 貸事務所検索 トップ > 博多駅前シティビル|福岡市博多区博多駅前1丁目9-3の貸事務所 物件詳細

物件概要


福岡市博多区博多駅前シティビルの物件外観


福岡市博多区博多駅前シティビルの物件詳細画像

■①1F


福岡市博多区博多駅前シティビルの物件詳細画像

■②6F-14F


福岡市博多区博多駅前シティビルの物件詳細画像

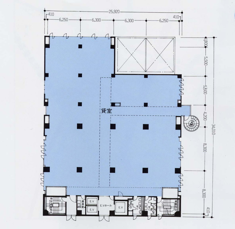
■③2F-5F


物件詳細情報

問い合わせコードB03325-2

面積 55.21 坪 ( 182.51m²) 家賃総額 条件相談

1階ホールもおしゃれにリニューアル済み!トイレのリニューアル済(ウォシュレット完備) 3階にリフレッシュコーナー完備(喫煙・自販機)

物件名博多駅前シティビル ※他の空室情報は物件名をクリック
所在地福岡県福岡市博多区博多駅前1丁目9-3
アクセス JR 博多駅 まで 徒歩約6
賃料 相談 共益費  
敷金   階数 2階
竣工年 1983年05月(築42年) 構造 SRC造 地上14階 地下1階
空調 個別空調 空冷ヒートポンプパッケージ方式 駐車場 立体駐車場 60台
設備 OAフロア有り リフレッシュルーム有り 会議室無し 喫煙室有り
備考 1階ホールもおしゃれにリニューアル済み! トイレのリニューアル済(ウォシュレット完備) 3階にリフレッシュコーナー完備(喫煙・自販機) 旧耐震基準により設計された建物ですが、新耐震基準により設計された建物と同程度の耐震損傷度物件です。 
■条件相談

更新日時:2025/11/25(次回更新予定日:2025/12/02)

検討リストに追加する 物件について問い合わせる

092-452-5111
物件詳細や空室率・相場など専門スタッフがお答えします!お気軽にお問い合わせください!

物件が気になる方はお気軽にお問い合わせを!

お問い合わせ

お電話の方はこちらから 092-452-5111



■周辺情報

類似した物件

※価格は税込 ※周辺にある賃料・面積の近い物件を表示しています。
福岡市博多区

事務所外観画像

55
975,920

ガーデン博多駅前ビル

福岡市博多区

事務所外観画像

55
1,084,644

リアンプレミアム博多駅前ビル

福岡市博多区

事務所外観画像

59
1,072,484

博多ビジネススクエア

福岡市博多区

事務所外観画像

47
879,274

FFB(福岡ファッションビル)

福岡市博多区

事務所外観画像

45
909,849

グランドタワー西博多ビル

福岡市博多区

事務所外観画像

45
786,500

ESLEAD GRAND BUREAU HAKATA EKIMAE


博多駅前シティビル : 福岡市博多区博多駅前1丁目9-3の賃貸事務所・賃貸オフィスの物件詳細情報 【問い合わせコード:B03325-2】

最新の空室状況や、博多駅前シティビルの内覧のお申し込み、福岡市博多区博多駅前1丁目9-3周辺の相場や平均賃料などお気軽にお問い合わせください。


福岡のオフィスビル相場【空室率・平均賃料】はこちら

※福岡市内の主要なビジネスエリアの空室率や賃貸事務所の平均募集賃料をエリア別・竣工年代別にご覧いただけます。

お問い合わせ

まずはお気軽にご相談ください。
オフィス・店舗・倉庫の賃貸仲介から不動産の売却や購入、不動産管理まで。
福岡の不動産はオフィスネットワークにおまかせください。

☎ 092-452-5111 【受付時間】平日 9:00~18:00

不動産に関して今すぐ相談する