
| 問い合わせコード | B04181-5 |
| 物件名 | 福岡Kスクエア ※他の空室情報は物件名をクリック (フクオカケースクエア) | ||
|---|---|---|---|
| 所在地 | 福岡県福岡市博多区中洲中島町1-3 | ||
| アクセス | 地下鉄空港線 中洲川端駅 まで 徒歩約3分 | ||
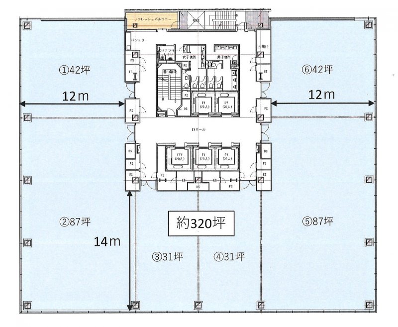
| 竣工年 | 2023年06月(築2年) | 構造 | S造 地上12階 |
| 空調 | 個別空調 空冷ヒートポンプパッケージ方式 | 駐車場 | 立体駐車場 42台 |
| エレベータ | 乗用20人乗り5基 | 天井高 | 2800mm |
| こちらの空室情報は掲載が終了しました | |||
■周辺情報
最新の空室状況や、福岡Kスクエアの内覧のお申し込み、福岡市博多区中洲中島町1-3周辺の相場や平均賃料などお気軽にお問い合わせください。
※福岡市内の主要なビジネスエリアの空室率や賃貸事務所の平均募集賃料をエリア別・竣工年代別にご覧いただけます。