太陽生命熊本ビル【熊本市中央区花畑町4-3の賃貸事務所】 - 最新の空室状況や資料請求などお気軽にお問い合わせください。

福岡の貸事務所・オフィスの賃貸ならオフィスネットワーク

メールでのお問い合わせはこちら

お電話でのお問合せ 092-452-5111



HOME > 貸事務所検索 トップ > 太陽生命熊本ビル|熊本市中央区花畑町4-3の貸事務所 物件詳細

物件概要


熊本市中央区太陽生命熊本ビルの物件外観


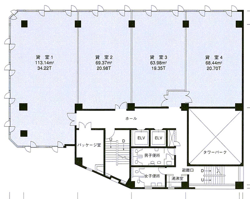
熊本市中央区太陽生命熊本ビルの物件詳細画像

■①2F-5F


熊本市中央区太陽生命熊本ビルの物件詳細画像

■②7F-9F


物件詳細情報

問い合わせコードB01259-8

面積 34.54 坪 ( 114.18m²) 家賃総額 条件相談

平成24年耐震補強工事済み、6階に貸会議室を完備

物件名太陽生命熊本ビル ※他の空室情報は物件名をクリック
所在地熊本県熊本市中央区花畑町4-3
アクセス熊本市電 花畑町駅まで徒歩約1分
賃料 相談 共益費  
敷金   階数 8階
竣工年 1976年03月(築49年) 構造 SRC造 地上9階
エレベータ 乗用9人乗り2基 天井高 2500mm
設備 OAフロア無し リフレッシュルーム無し 会議室有り 喫煙室無し
備考 6階に貸会議室を完備 空調費:定額500円/坪 定期借家契約 
■条件相談

更新日時:2025/11/04(次回更新予定日:2025/11/11)

検討リストに追加する 物件について問い合わせる

092-452-5111
物件詳細や空室率・相場など専門スタッフがお答えします!お気軽にお問い合わせください!

物件が気になる方はお気軽にお問い合わせを!

お問い合わせ

お電話の方はこちらから 092-452-5111



■周辺情報

類似した物件

※価格は税込 ※周辺にある賃料・面積の近い物件を表示しています。
熊本市中央区

事務所外観画像

34
398,061

パークビル

熊本市中央区

事務所外観画像

36
308,582

村瀬海運ビル

熊本市中央区

事務所外観画像

33
343,269

ペアレントビル

熊本市中央区

事務所外観画像

33
条件相談

熊本第一生命ビル

熊本市中央区

事務所外観画像

37
308,000

第5ロータリービル

熊本市中央区

事務所外観画像

32
条件相談

熊本花畑ビル

熊本市中央区

事務所外観画像

39
381,942

南熊本511ビルディング


太陽生命熊本ビル : 熊本市中央区花畑町4-3の賃貸事務所・賃貸オフィスの物件詳細情報 【問い合わせコード:B01259-8】

最新の空室状況や、太陽生命熊本ビルの内覧のお申し込み、熊本市中央区花畑町4-3周辺の相場や平均賃料などお気軽にお問い合わせください。


福岡のオフィスビル相場【空室率・平均賃料】はこちら

※福岡市内の主要なビジネスエリアの空室率や賃貸事務所の平均募集賃料をエリア別・竣工年代別にご覧いただけます。

お問い合わせ

まずはお気軽にご相談ください。
オフィス・店舗・倉庫の賃貸仲介から不動産の売却や購入、不動産管理まで。
福岡の不動産はオフィスネットワークにおまかせください。

☎ 092-452-5111 【受付時間】平日 9:00~18:00

不動産に関して今すぐ相談する