末広ビル【大分市末広町1丁目1-32の賃貸事務所】 - 最新の空室状況や資料請求などお気軽にお問い合わせください。

福岡の貸事務所・オフィスの賃貸ならオフィスネットワーク

メールでのお問い合わせはこちら

お電話でのお問合せ 092-452-5111



HOME > 貸事務所検索 トップ > 末広ビル|大分市末広町1丁目1-32の貸事務所 物件詳細

物件概要


大分市末広ビルの物件外観


大分市末広ビルの物件詳細画像

■①B1F


大分市末広ビルの物件詳細画像

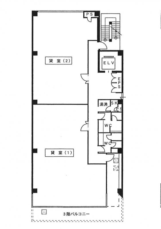
■②3F-6F


物件詳細情報

問い合わせコードB01480--1

面積 50.11 坪 ( 165.65m²) 家賃総額 716,573 円(税込) 
物件名末広ビル ※他の空室情報は物件名をクリック
所在地大分県大分市末広町1丁目1-32
アクセス JR 大分駅 まで 徒歩約1
賃料 551,210円(税込)
(1坪あたり:11,000円)
共益費 165,363円(税込)
(1坪あたり:3,300円)
敷金 12ヶ月分  6,013,200円(総額) 階数 地下1階
竣工年 1993年09月(築32年) 構造 S造 地上8階 地下1階
設備 OAフロア無し リフレッシュルーム無し 会議室無し 喫煙室無し

更新日時:2026/02/24(次回更新予定日:2026/03/03)

検討リストに追加する 物件について問い合わせる

092-452-5111
物件詳細や空室率・相場など専門スタッフがお答えします!お気軽にお問い合わせください!

物件が気になる方はお気軽にお問い合わせを!

お問い合わせ

お電話の方はこちらから 092-452-5111



■周辺情報

類似した物件

※価格は税込 ※周辺にある賃料・面積の近い物件を表示しています。

末広ビル : 大分市末広町1丁目1-32の賃貸事務所・賃貸オフィスの物件詳細情報 【問い合わせコード:B01480--1】

最新の空室状況や、末広ビルの内覧のお申し込み、大分市末広町1丁目1-32周辺の相場や平均賃料などお気軽にお問い合わせください。


福岡のオフィスビル相場【空室率・平均賃料】はこちら

※福岡市内の主要なビジネスエリアの空室率や賃貸事務所の平均募集賃料をエリア別・竣工年代別にご覧いただけます。

お問い合わせ

まずはお気軽にご相談ください。
オフィス・店舗・倉庫の賃貸仲介から不動産の売却や購入、不動産管理まで。
福岡の不動産はオフィスネットワークにおまかせください。

☎ 092-452-5111 【受付時間】平日 9:00~18:00

不動産に関して今すぐ相談する