フェイズイン山王公園前【福岡市博多区山王1丁目10-11の賃貸事務所】 - 最新の空室状況や資料請求などお気軽にお問い合わせください。

福岡の貸事務所・オフィスの賃貸ならオフィスネットワーク

メールでのお問い合わせはこちら

お電話でのお問合せ 092-452-5111



HOME > 貸事務所検索 トップ > フェイズイン山王公園前|福岡市博多区山王1丁目10-11の貸事務所 物件詳細

物件概要


福岡市博多区フェイズイン山王公園前の物件外観


福岡市博多区フェイズイン山王公園前の物件詳細画像

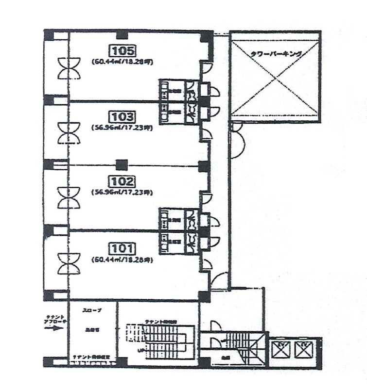
■①1F


福岡市博多区フェイズイン山王公園前の物件詳細画像

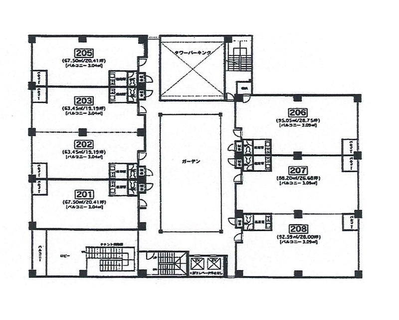
■②2F


物件詳細情報

問い合わせコードB03828-2

面積 26.68 坪 ( 88.2m²) 家賃総額 205,436 円(税込) 

筑紫通り沿い。 OA床。地下鉄東比恵駅より徒歩約10分!

物件名フェイズイン山王公園前 ※他の空室情報は物件名をクリック
所在地福岡県福岡市博多区山王1丁目10-11
アクセス 地下鉄空港線 東比恵駅 まで 徒歩約10
賃料 205,436円(税込)
(1坪あたり:7,700円)
共益費  
敷金 8ヶ月分  1,494,080円(総額) 階数 2階
竣工年 2001年02月(築24年) 構造 RC造 地上10階
空調 個別空調 空冷ヒートポンプパッケージ方式 駐車場 立体駐車場30台 平面駐車 12台
設備 OAフロア無し リフレッシュルーム無し 会議室無し 喫煙室無し

更新日時:2025/10/28(次回更新予定日:2025/11/04)

検討リストに追加する 物件について問い合わせる

092-452-5111
物件詳細や空室率・相場など専門スタッフがお答えします!お気軽にお問い合わせください!

物件が気になる方はお気軽にお問い合わせを!

お問い合わせ

お電話の方はこちらから 092-452-5111



■周辺情報

類似した物件

※価格は税込 ※周辺にある賃料・面積の近い物件を表示しています。
福岡市博多区

事務所外観画像

26
230,912

第3よしみビル

福岡市博多区

事務所外観画像

24
224,400

ファーストいずみ

福岡市博多区

事務所外観画像

24
165,000

山王パークビル

福岡市博多区

事務所外観画像

23
213,400

内山東光ビル

福岡市博多区

事務所外観画像

22
220,000

エスポワール空港通り

福岡市博多区

事務所外観画像

21
条件相談

三共福岡ビル


フェイズイン山王公園前 : 福岡市博多区山王1丁目10-11の賃貸事務所・賃貸オフィスの物件詳細情報 【問い合わせコード:B03828-2】

最新の空室状況や、フェイズイン山王公園前の内覧のお申し込み、福岡市博多区山王1丁目10-11周辺の相場や平均賃料などお気軽にお問い合わせください。


福岡のオフィスビル相場【空室率・平均賃料】はこちら

※福岡市内の主要なビジネスエリアの空室率や賃貸事務所の平均募集賃料をエリア別・竣工年代別にご覧いただけます。

お問い合わせ

まずはお気軽にご相談ください。
オフィス・店舗・倉庫の賃貸仲介から不動産の売却や購入、不動産管理まで。
福岡の不動産はオフィスネットワークにおまかせください。

☎ 092-452-5111 【受付時間】平日 9:00~18:00

不動産に関して今すぐ相談する