シティビル5【福岡市博多区博多駅南3丁目2-6の賃貸事務所】 - 最新の空室状況や資料請求などお気軽にお問い合わせください。

福岡の貸事務所・オフィスの賃貸ならオフィスネットワーク

メールでのお問い合わせはこちら

お電話でのお問合せ 092-452-5111



HOME > 貸事務所検索 トップ > シティビル5|福岡市博多区博多駅南3丁目2-6の貸事務所 物件詳細

物件概要


福岡市博多区シティビル5の物件外観


福岡市博多区シティビル5の物件詳細画像

■①1F


福岡市博多区シティビル5の物件詳細画像

■②2F


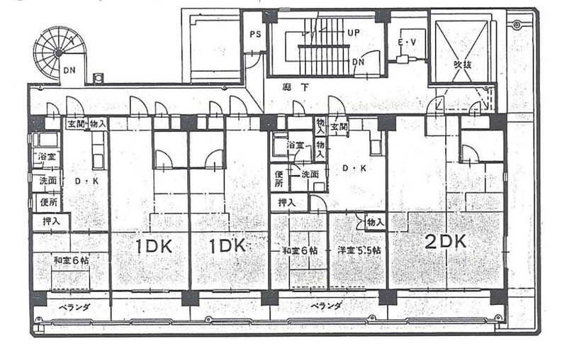
福岡市博多区シティビル5の物件詳細画像

■③3-9F


物件詳細情報

問い合わせコードB03138-2

面積 18.5 坪 ( 61.16m²) 家賃総額 203,500 円(税込) 

竹下通りに面した角地!

物件名シティビル5 ※他の空室情報は物件名をクリック
所在地福岡県福岡市博多区博多駅南3丁目2-6
アクセス JR 博多駅 まで 徒歩約15
賃料 203,500円(税込)
(1坪あたり:11,000円)
共益費  
敷金 8ヶ月分  1,480,000円(総額) 階数 2階
竣工年 1984年03月(築42年) 構造 RC造 地上9階
空調 個別空調 空冷ヒートポンプパッケージ方式 駐車場 平面駐車場 1台
設備 OAフロア無し リフレッシュルーム無し 会議室無し 喫煙室無し

更新日時:2026/02/24(次回更新予定日:2026/03/03)

検討リストに追加する 物件について問い合わせる

092-452-5111
物件詳細や空室率・相場など専門スタッフがお答えします!お気軽にお問い合わせください!

物件が気になる方はお気軽にお問い合わせを!

お問い合わせ

お電話の方はこちらから 092-452-5111



■周辺情報

類似した物件

※価格は税込 ※周辺にある賃料・面積の近い物件を表示しています。
福岡市博多区

事務所外観画像

19
186,120

博多東エースビル

福岡市博多区

事務所外観画像

18
176,000

古門ビル

福岡市博多区

事務所外観画像

18
198,000

シティビル5

福岡市博多区

事務所外観画像

20
216,810

フェイズイン博多ビル

福岡市博多区

事務所外観画像

17
226,776

福岡ホリヤビル

福岡市博多区

事務所外観画像

17
240,900

九総信第2ビル

福岡市博多区

事務所外観画像

21
184,800

岩義ビル


シティビル5 : 福岡市博多区博多駅南3丁目2-6の賃貸事務所・賃貸オフィスの物件詳細情報 【問い合わせコード:B03138-2】

最新の空室状況や、シティビル5の内覧のお申し込み、福岡市博多区博多駅南3丁目2-6周辺の相場や平均賃料などお気軽にお問い合わせください。


福岡のオフィスビル相場【空室率・平均賃料】はこちら

※福岡市内の主要なビジネスエリアの空室率や賃貸事務所の平均募集賃料をエリア別・竣工年代別にご覧いただけます。

お問い合わせ

まずはお気軽にご相談ください。
オフィス・店舗・倉庫の賃貸仲介から不動産の売却や購入、不動産管理まで。
福岡の不動産はオフィスネットワークにおまかせください。

☎ 092-452-5111 【受付時間】平日 9:00~18:00

不動産に関して今すぐ相談する